en
  
მეტეხის შესახვევის 33 სახლი ტრაპეციის ფორმის ნაკვეთს ზედა, ჩრდილოეთი მხრიდან ფარგლავს და მთლიანად იკავებს მის ზედა ზოლს (17.50X6.30).
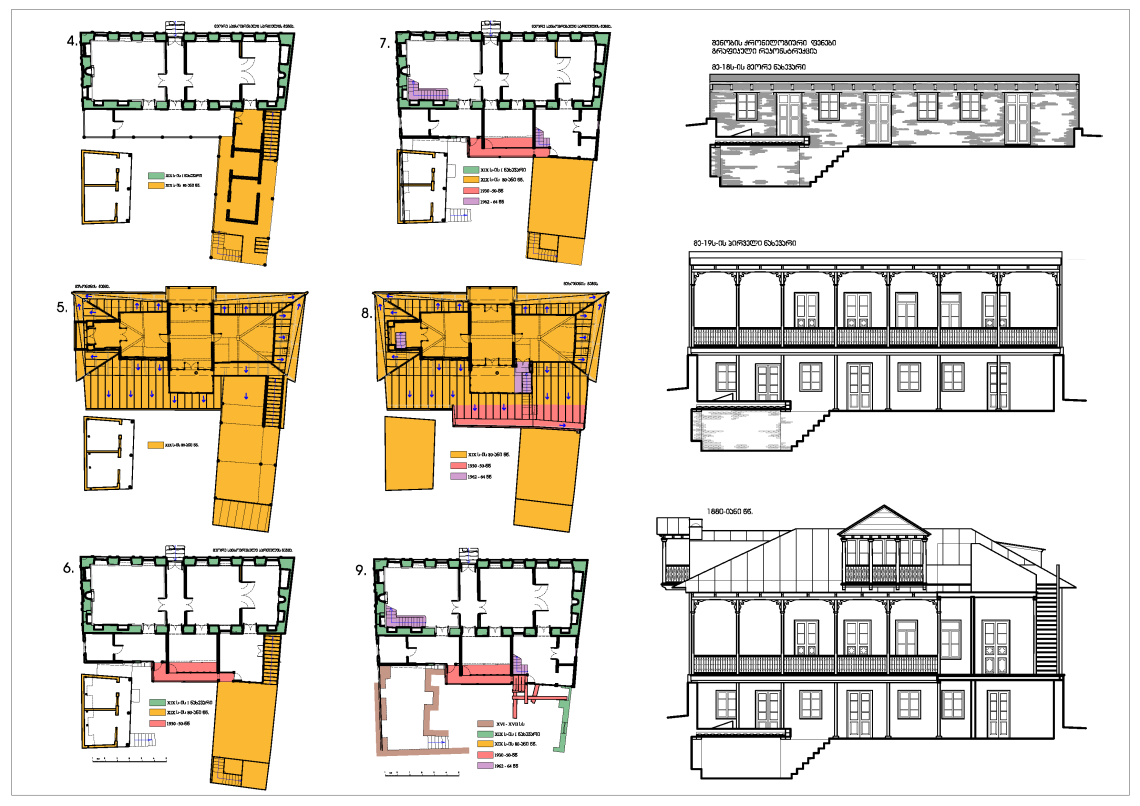
დღევანდელი ნაგებობა ძლიერად წაგრძელებული, თითქმის სწორკუთხა გეგმის, სარდაფის შემცველ მაღალ ცოკოლზე აშენებული, ამოზიდული, სივრცეში ლაღად გაშლილი ნაგებობაა. ის ყველა მხრიდან თავისუფლად მოიხილება. ნაგებობა ძველი, კვადრატული აგურით არის ნაშენი მიწის დუღაბზე და რამდენიმე სამშენებლო ფენის შემცველია. 
სარდაფის სართულზე აშენებული შენობა მეტეხის შესახვევის და დაფერდებული ეზოს განსხვავებული ნიშნულების გამო, ერთსართულიანია ქუჩის და ორსართულიანია ეზოს მხრიდან. შენობას მეზონინი აქვს, რომელიც სახლის სახურავშია მოწყობილი. ნაგებობის ძირითად, სწორკუთხა ფორმის გრძივ მოცულობაზე, აღმოსავლეთ მხარეს მართი კუთხით ფლიგელი იყო მიდგმული (ფლიგელი დღეს დანგრეულია), რომელიც აგურის ზღუდით გრძელდებოდა სამხრეთით. 
სწორედ შენობის ძირითადი მოცულობით, მიმდებარე ფლიგელითა და ზღუდით, ზემოხსენებული სახურავმოხდილი ძველი ნაგებობით და რუისის ქუჩის 26-ში მდებარე ერთსართულიანი საცხოვრებლის შეულესავი აგურის ყრუ ზურგით იქმნებოდა და იკვრებოდა ტრაპეციის მოყვანილობის ნაკვეთის შიგნით ჩაწერილი ეზოს კონტური, რომლისკენაც მეტეხის შესახვევის სახლი ორ სართულად განლაგებული ღია აივნებიანი და მეზონინიანი ფასადით იყო მიმართული. მეტეხის შესახვევის 33-ში მდებარე სახლის სარდაფის სართული ამ ადგილას
ოდესღაც არსებული ძველი ტიპოლოგიის საცხოვრებელი უნდა იყოს და მისი აგება წინ უსწრებს სახლის ძირითადი ნაწილის აშენებას. მიკროკვარტალში არსებული კიდევ ორი მომცრო შენობა (სახურავმოხსნილი ძველი სარდაფი და რუისის ქუჩის 26), ასევე ძველი ტიპოლოგიის შენობებია, ოღონდ, განსხვავებული აღნიშნული სარდაფის სადგომისაგან და ერთ-ერთი სავარაუდოდ, უფრო ადრეულიც. 


საკვლევი შენობის სარდაფის სართული წარმოადგენს მეტეხის შესახვევის გასწვრივ განვითარებულ, ძლიერად წაგრძელებულ, ოდესღაც, სავარაუდოდ ერთიან ან ორნაწილედ სივრცეს, რომელიც ზურგით მიწაშია ღრმად შეჭრილი და მას მხოლოდ ერთი, ეზოს სივრცისკენ მიპყრობილი ფასადი აქვს. დღეს სადგომი მიწის ზედაპირს ქუჩის მხრივ საგრძნობლად ასცდება, მაგრამ ამოზიდულ ნაწილზე, რომელიც XIX საუკუნის, სავარაუდოდ შუა ხანებში აშენებული სახლის ცოკოლს წარმოადგენს, დაკვირვება, თავის მხრივ, რამდენიმე საამშენებლო ფენას ავლენს.

მეტეხის შესახვევი 33. 1960-იანი წწ. ფოტო. © კონდახსაზოვების საოჯახო არქივი

დარბაზი და ბანიანი სახლი, როგორც ცნობილია, შეადგენდნენ თბილისის განაშენიანების ძირითად ტიპს არა მხოლოდ ძველად, არამედ XIX საუკუნის პირველ ნახევარშიც.
მეორე საცხოვრებელი სართულის გეგმა თბილისურ ტრადიციასთან ძალიან მტკიცე კავშირს ამჟღავნებს, როგორც ტიპოლოგიური, ისე ფუნქციური და გეგმარებითი თვალსაზრისით და მთლიანად ადგილობრივ სამშენებლო ჩვეულებებს მისდევს. საცხოვრებელი სახლი თბილისური სახლის ერთი კონკრეტული ტიპის, ანფილადური გეგმარების მქონე სახლის ერთ-ერთი ნაირსახეობაა და ამ ტიპის მნიშვნელოვან ნიმუშს წარმოადგენს. XIX საუკუნის თბილისის ანფილადური ტიპის სახლებისათვის, როგორც ცნობილია, ოთახების (სადგომების) ერთ მწკრივად დალაგება, ერთ ღერძზე დალაგებული ოთახიდან ოთახში გამავალი კარებით არის დამახასიათებელი, უკანა მხარეს, კი მას, მთელ სიგრძეზე, ხის ღია აივანი მიუყვება და ოთახების ერთმანეთთან კავშირი, გარდა ერთ ღერძზე განლაგებული კარის ღიობებისა, მისი მეშვეობითაც ხორციელდება. მეტიც, თბილისური ანფილადური სახლის თავისებურება ის არის, რომ სახლში შესასვლელი მხოლოდ აივნიდან არის მოწყობილი. აღწერილი ტიპი ფართოდ არის გავრცელებული აღმოსავლეთ საქართველოს ქალაქებში.

ავტორი: მაია მანია